Info. Covid19 11/09/2020
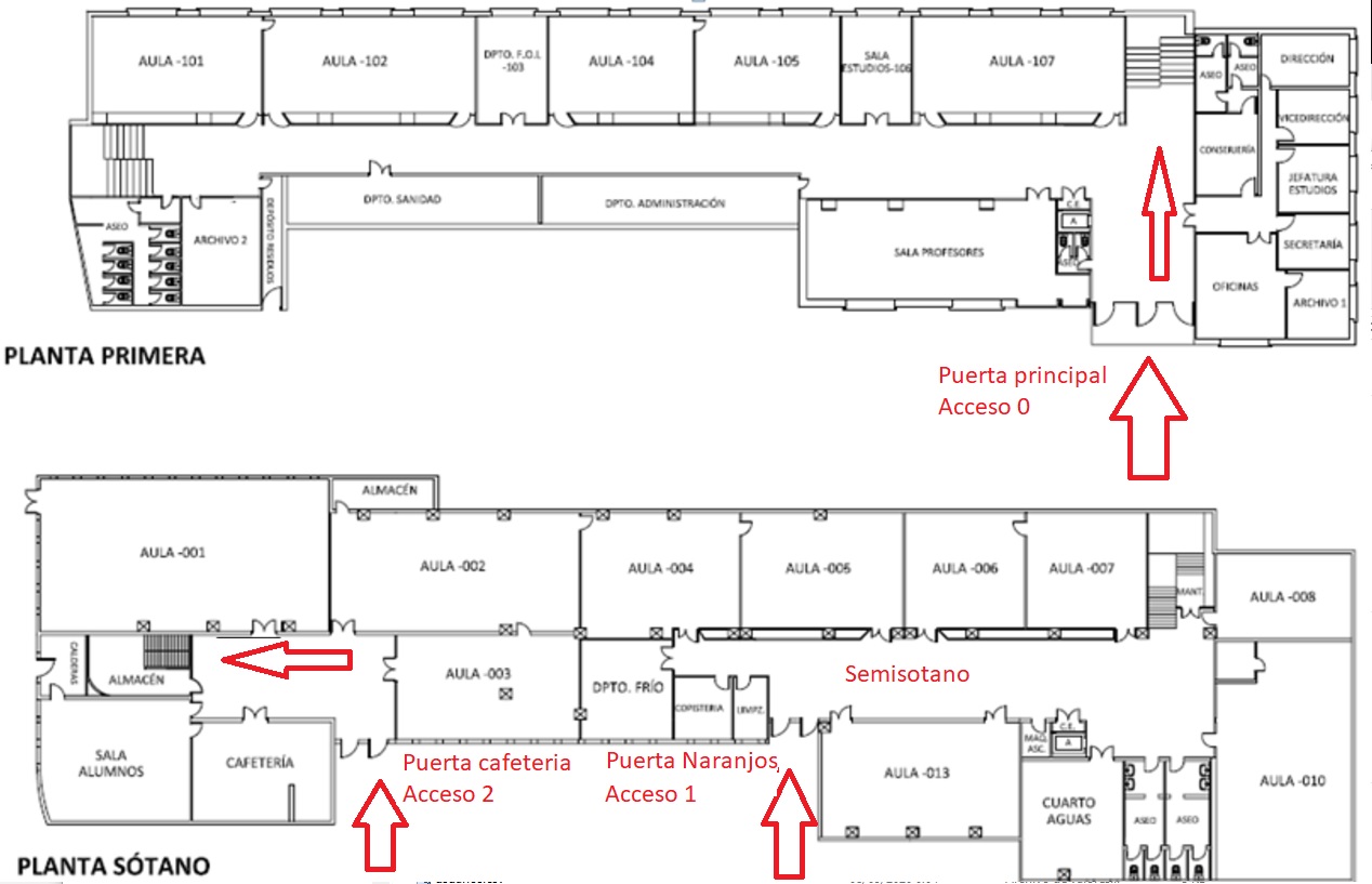
Rutas de acceso al centro por grupos
Para evitar las aglomeraciones en las entradas y salidas al centro, se han habilitado unas rutas, por las que en función del aula o ciclo formativo de destino, se debe usar una ruta u otra.

El centro diapone de 3 puertas de acceso etiquetadas como.
- Puerta de entrada habitual
- Puerta de acceso al semisotano
- Puerta de acceso a la cafeteria

Usuarios de cada ruta:
| Puerta de acceso | Grupos |
|---|---|
| 0 Puerta de entrada habitual |
|
| 1 Puerta de acceso al semisotano |
|
| 2 Puerta de acceso a la cafeteria |
|





